■ Space plan 

 

Design - design by 83

Client - BOHYUNSEONWON 

Location - 14, Seokpo-ro 26beonga-gil, Nam-gu, Busan, Republic of Korea    

Design Period - 04. 2023

Function -Temple  

Area - ≒270㎡ 

Wall material - Paint, Special paint, Sheet, Wallpaper, Mono tile, Granite stone 

Ceiling material - Paint, Special paint, Wallpaper 

Floor material - Tile, Laminate floor, Granite stone 

Photographer - Donggyu Kim

Story & Concept 


Originally a small Buddhist temple nestled in the mountains of Gyeongjuin South GyeongsangProvince, South Korea, BohyeonSeonwon was reportedly challenging for contemporary devotees, busy with modern life, to visit with ease. Two Bhikkhuni monks expressed that they relocated to the city to establish a temple that would be more accessible and welcoming to a larger number of devotees. 

In “Choamjipseo” by Yeonam Park Ji-won, the classical Chinese idiom “beopgochangsin” is featured. 

This translates as “Emulate the old to create the new.” The term indicates that exclusive adherence to the past can be inflexible, and a sole focus on innovation might overlook essential norms. This philosophy has influenced the reinterpretation of the visual and meaningful aspects of Korean architecture, fostering the creation of spaces that effectively merge with the urban and cultural landscape. 

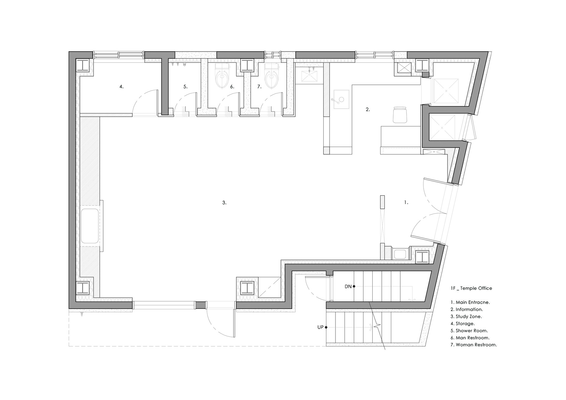
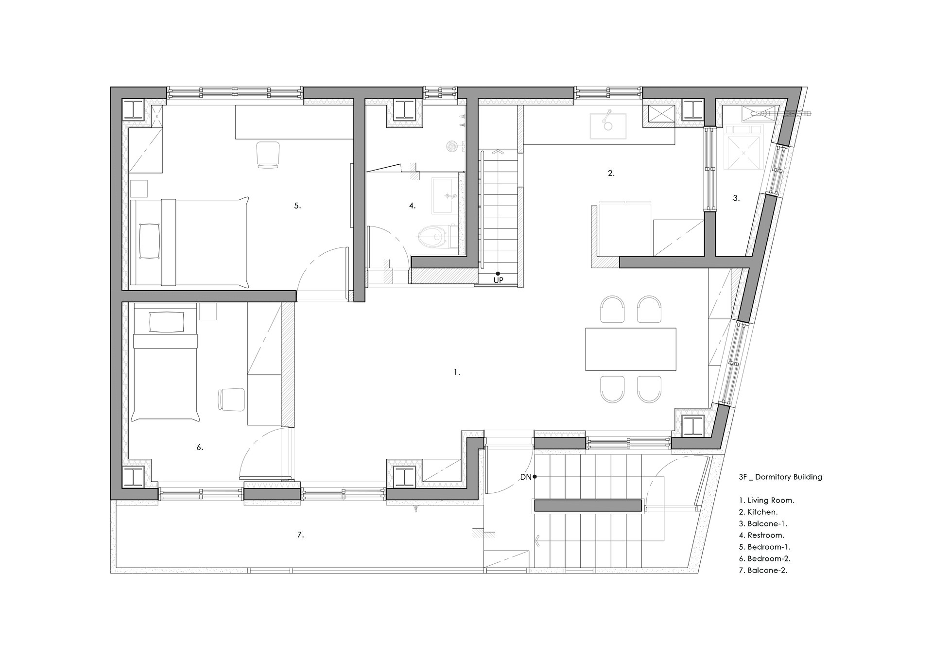
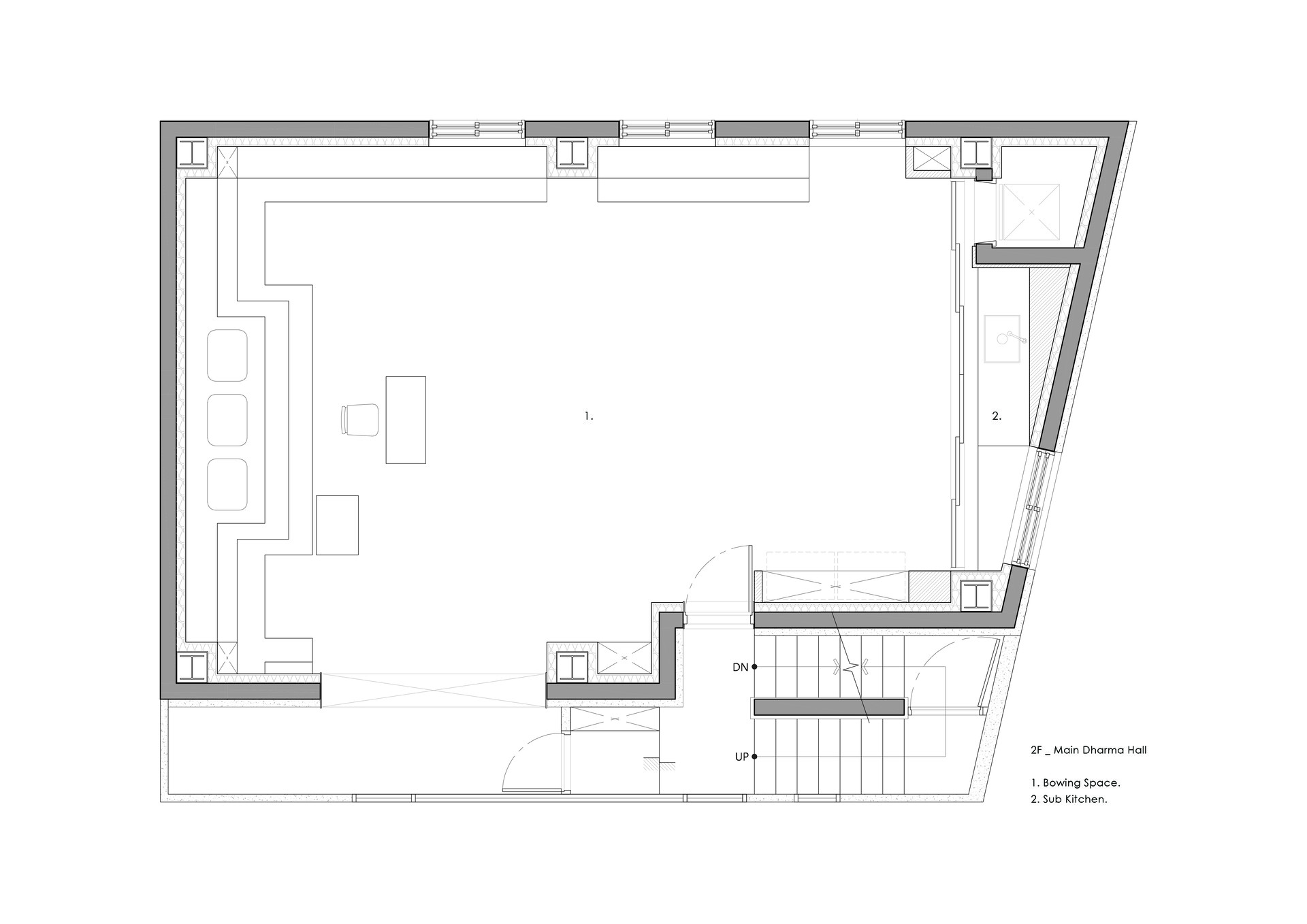
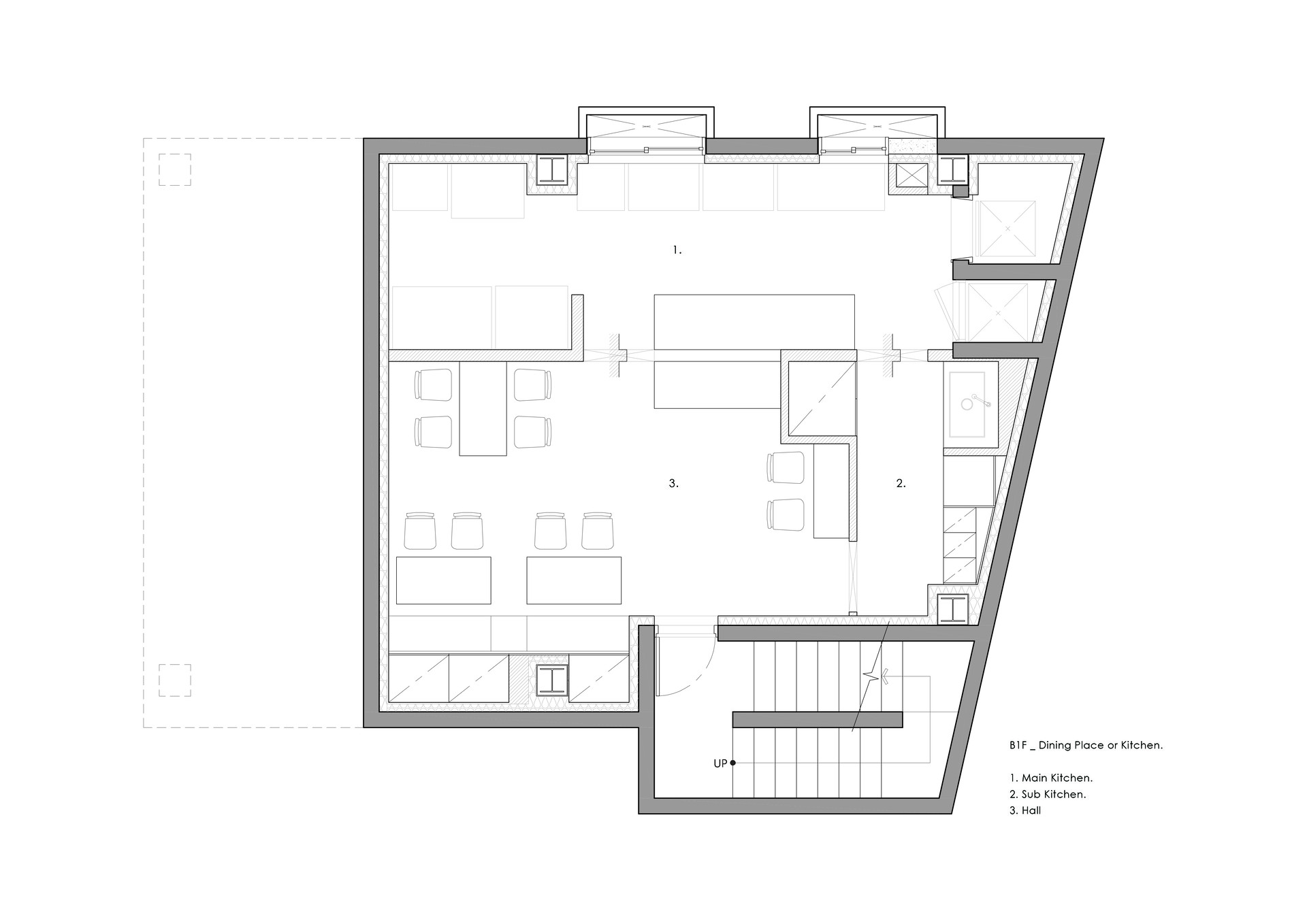
The building spans from one underground level to three above-ground levels. The basement features a dining hall used by monks and devotees. On the first floor, there is an administrative office dedicated to educating about Buddhism. The second floor hosts the main hall where Buddha is enshrined. The top floor, the third, serves as the living quarters for two Bhikkhuni monks. 

The exterior retains the classic old image of a temple constructed in traditional East Asian wooden architecture but modernizes it by employing metal materials that mimic the color of wood for the windows and doors. It is finished with monolithic tiles and granite, achieving a simple and contemporary look without elaborate decorations. 

The dining hall in the basement blends warmth and simplicity, featuring traditional wooden window frames harmoniously paired with contemporary tile materials. As visitors ascend to the ground floor, they are greeted by the administrative office. The entrance is designed with a centrally located circular opening in the wall, through which a statue of Buddha can be seen, symbolizing religious sanctity. 

Beyond the wall to the right, there is a welcoming space for guests, accented with vertical wooden beams that create a sense of depth upon entry. 

The main hall on the second floor was designed in collaboration with a master carpenter, a specialist in traditional Korean Hanokarchitecture. It features an altar for Buddha, associated furniture, and a taenghwa. Prayer lanterns, where devotees can hang names as they pray or make wishes, are designed to be regularly spaced and easily detachable, reflecting the concept of creating new from the old. 

The space also includes a small area for sharing light refreshments during prayers, enclosed with traditional Korean sliding doors to maintain focus during devotional activities. The third-floor living quarters, designated for monks, are characterized by their minimalist design and finish, intentionally less embellished than other levels to ensure a comfortable environment for the two monks residing there. 

The overall architectural approach reinterprets traditional features through modern designs and finishes, representing a distinctive view of an urban temple.

Copyright ⓒ 2022 designby83 All rights reserved.

Copyright ⓒ 2022 designby83 All rights reserved.