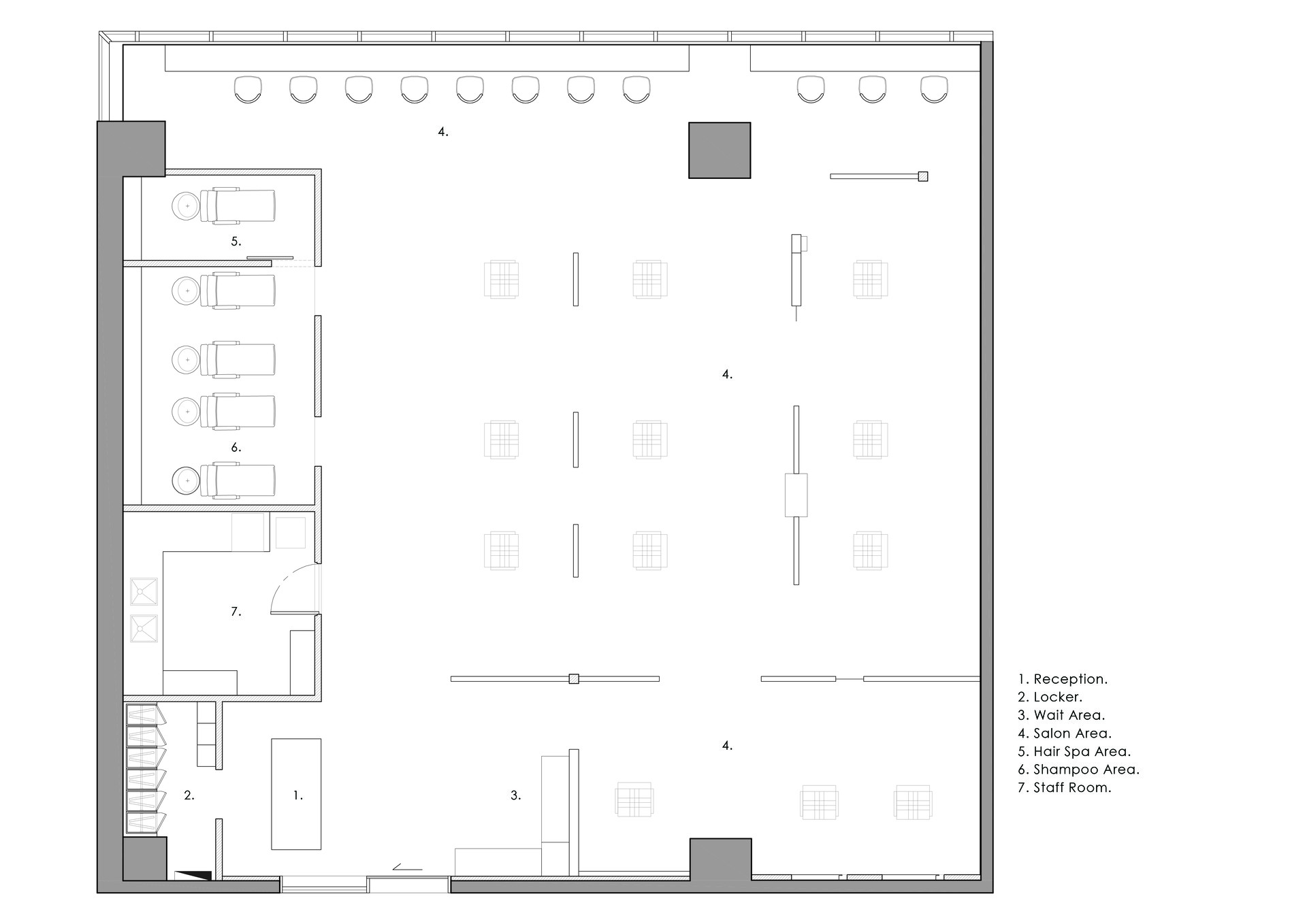
■ Space plan / Construction 

 

Design - design by 83

Client - LE'EVO

Location - 60, Centum jungang-ro, Haeundae-gu, Busan, Republic of Korea    

Design Period - 06. 2024

Function -Hair Shop  

Area - ≒188㎡ 

Wall material - Paint, Special paint, Art paint, Tile 

Ceiling material - Paint 

Floor material - Concrete Polishing 

Etc material - Marble, Satin Acrlic

Photographer - Donggyu Kim

Story & Concept


LE’EVO is a hair shop that provides the best design and service to customers by maintaining its philosophy and values. The client who has run its headquarters for a long time, wanted to create a different atmosphere at a new store. The focus was on expressing the upgraded design and brand new image into the space. Modification of design began with Old&New. It was intended to escape its image by changing the store created with a woodcentered warm feeling into a processed cold materials and tone. Unlike the old, white was used as the base and gray tone was added, to give the sense of depth to the white space the could look flat. The finishes of metal, gray marble, and glossy concrete used in the space reveal the opposite charm and aesthetics of wood. SUS was used for the make-up table, and the back wall of make-up table was finished with white stone plastering. The soft stone on the wall that touches the waiting area at the entrance atmosphere looks like stone, and its texture emits the antique feeling of the old house. A unique space is completed simply by excluding wood that occupied a lot of sides in the existing beauty shop. The design team agonized over the identity of the hair shop. The design team perceived LE’EVO as a brand which focuses on the space, design, and hairdressers’ service mind for customer satisfaction. Reflecting the attitude of LE’EVO, the design team completed the space by studying materials that create a calm illumination and atmosphere, with the aim of making those receiving the service feel comfortable. The design team embedded line lighting in make-up table in order that the customer’s face could be seen clearly without shadows. In particular, they paid a lot of attention to the movement line and the gap between make-up tables. A partition was installed at the entrance so that the eyes of the customer entering the space would not happen to meet those of the customer receiving the service. However, its height was adjusted so that the space did not look stuffy. In this way, the design team divided open space and private space through partition and different materials, making the customers perceive implicitly. During construction, they checked several times int units on the spot, considering the optimal movement line from the entrance to the waiting area, from the waiting area to the make-up table, and from the make-up table to the shampoo room. It is the mind of the design team who wanted the customers to use the space comfortably enough unconscious rather than noticing something. Through the delicate planning of the design team, LE’EVO took another leap forward, and the harmony of Old&New makes LE’EVO brand image even more definite

Copyright ⓒ 2022 designby83 All rights reserved.

Copyright ⓒ 2022 designby83 All rights reserved.