■ Space plan / Construction 

 

Design - design by 83

Client - Originality Sachi 

Location - 101, Hyundai Benecity Shopping Center, 163 Haeundaehaebyeon-ro, Haeundae-gu, Busan, Republic of Korea    

Design Period - 08. 2024

Function -Original Vintage Furniture Shop  

Area - ≒119㎡ 

Wall material - Paint, Special paint, Art paint, Galvalume Steel 

Ceiling material - Paint, Galvalume Steel 

Floor material - Seni pierres 

Photographer - Donggyu Kim

Story & Concept 


The CL Lounge (Collector Lounge) is an Original Vintage Furniture Shop brand envisioned by Originality Sachi Edition Busan to embody their distinctive philosophy and values, delivering premium original furniture and exceptional service to customers. 

The client requested a space design that enhances the identity of the established Originality Sachi Edition Busan brand while also functioning as a showcase for their personal collection of high-end original furniture. We pondered the value of original vintage furniture in contemporary society and were captivated by how pieces created by the great masters of their era have grown in value over time. This led us to study ways to harmoniously and naturally visualize the changing value of spaces as they age, drawing parallels to vintage furniture.

(The flow of time & value = reinterpretation of section)

The ongoing development of CL Lounge should create a space that not only harmonizes with but also adapts to the enduring value of timeless furniture. Applying this conceptual approach to design, we envisioned furniture arrangements that, in any context, would act as a superb structural backdrop, enabling fresh compositions to seamlessly bring the space together as a unified whole. What, then, should a space that seamlessly harmonizes with furniture look like? By reinterpreting sectional forms, we chose to express the space using a design language of spatial experiences, the division of planes, angles, and the physical properties of materials. 

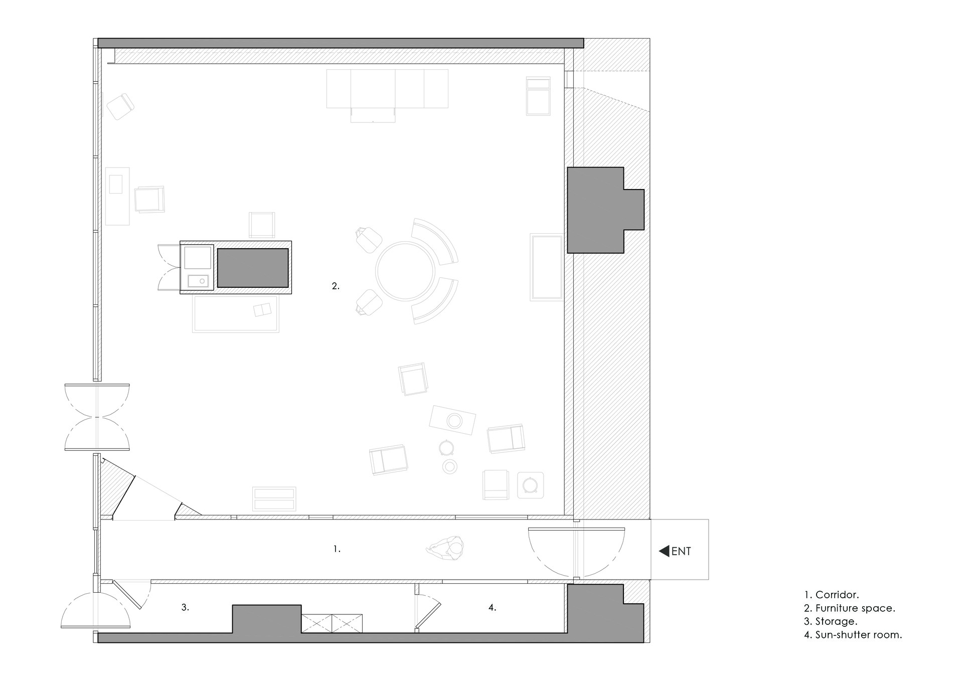
Within this simple rectangular space, visitors move through a transitional corridor leading from the main entrance and pass through a diagonal opening before reaching the section where the furniture is displayed. While passing through this long corridor, visitors are greeted by a low, elongated horizontal window whose panels gradually decrease in size, offering an experience crafted to heighten their curiosity with each step forward. 

Beyond the diagonal opening, the space is defined by a slanted ceiling and an extended diagonal wall directly facing the opening, designed to amplify the spatial depth. Departing from the Originality Sachi Edition Busan store, known for its diverse display of original vintage furniture, the overall ambiance reflects the client’s need for materials that accentuate the furniture. This was accomplished using special white paint finishes alongside standard paint treatments. The displayed furniture primarily consists of wooden-toned pieces by French designers, including Jean Prouvé, Charlotte Perriand, Pierre Jeanneret, André Sornay, and Pierre Chapo. This selection ensures that the furniture remains visually striking regardless of the arrangement. Additionally, although the walls share a uniform white finish, the varied textures of the materials create a distinctive charm, adding dimensionality to the space. 

With forms, pathways, and details that are simple yet thoughtfully complex, we strive to introduce a space that combines the act of purchasing furniture with an entirely new experience for the customer

Copyright ⓒ 2022 designby83 All rights reserved.

Copyright ⓒ 2022 designby83 All rights reserved.